Άννα Παρασκευά – Γιώργος Παπαγκίκας
Η παρούσα διπλωματική εργασία παρουσιάστηκε τον Σεπτέμβριο του 2011 στην Αρχιτεκτονική Βόλου, με επιβλέποντες τους Βάσω Τροβά και Λόη Πάπαδόπουλο.
«Στο κλασικό του έργο Η εικόνα της πόλης (The image of the city) ο Kevin Lynch διδάσκει ότι η αλλοτριωμένη πόλη είναι, πάνω απ’ όλα χώρος στον οποίο οι άνθρωποι είναι ανίκανοι να χαρτογραφήσουν (νοητά) είτε τις δικές τους θέσεις είτε την αστική ολότητα μέσα στην οποία τοποθετούνται (…). Κατά συνέπεια, η απαλλοτρίωση στην παραδοσιακή πόλη προϋποθέτει την πρακτική ανάκτηση μιας αίσθησης της θέσης και την κατασκευή ή ανακατασκευή ενός αρθρωμένου συνόλου, απομνημονεύσιμου, το οποίο το ατομικό υποκείμενο μπορεί να χαρτογραφήσει ξανά και ξανά διαγράφοντας τις πιθανές τροχιές κίνησής του. (…)»
Fredric Jameson, Το Μεταμοντέρνο, ή η πολιτισμική λογική του ύστερου καπιταλισμού (1984) αποσπάσματα από τις εκδόσεις ΝΕΦΕΛΗ για την ελληνική γλώσσα (1999)
Η παρούσα διπλωματική εργασία επιχειρεί την ανάπλαση και ενοποίηση του παραλιακού μετώπου του Βόλου μεταξύ του αγάλματος Ηρώου/ κτιρίου του πανεπιστημίου (Παπαστράτος) και του χειμάρρου Αναύρου. Σε αυτή περιλαμβάνονται το πάρκο του Αγίου Κωνσταντίνου, οι εγκαταστάσεις του ξενοδοχείου Ξενία και το πάρκο του Αναύρου.
Η περιοχή μελέτης είναι ένας από τους ελάχιστους, και απολύτως αναγκαίους για την πόλη, αυτού του μεγέθους ανοιχτός δημόσιος χώρος.
Ως τέτοιος εδώ και μεγάλο διάστημα αποτελεί το πεδίο σύγκρουσης μεταξύ των δημοσίων και ιδιωτικών συμφερόντων. Ο ιδιωτικός τομέας επιχειρεί διαρκώς την επέκτασή του και την εκμετάλλευση ολοένα και μεγαλύτερου τμήματος του πάρκου, μέσω της αλλαγής χρήσης του από ελεύθερο ανοιχτό δημόσιο χώρο πρασίνου σε πεδίο τουριστικών εγκαταστάσεων.
Προσεγγίζοντας κανείς τη περιοχή μελέτης διαπιστώνει ότι κυριαρχείται από πολλών ειδών εμπόδια και διαχωρισμούς οι οποίοι τον κρατούν κατακερματισμένο, μη δίνοντας στον επισκέπτη τη δυνατότητα συνολικής του σύλληψης, αποδοχής, μετακίνησης και χρήσης του με ευκολία σε όλο του το εύρος. Αυτή η κατάσταση, σε συνδυασμό με το οργανικό, ασαφές και μη ενιαίο θαλάσσιο όριο του πάρκου του Αναύρου, διαφοροποιούν το συγκεκριμένο τμήμα από τις υπόλοιπες δομές που απαρτίζουν το μέτωπο της πόλης του Βόλου, οι οποίες είναι κατά κανόνα μεγαλύτερες, καθαρότερες και πιο διακριτές. Αντίστοιχα η πλευρά του προς την πόλη παρουσιάζει μια σειρά σημαντικών εμποδίων (parking, καφετέριες, φυτεύσεις κ.α.) τα οποία το κάνουν να λειτουργεί περισσότερο σαν διαχωριστικό όριο της πόλης με τη θάλασσα παρά σύνδεσή του.
Με βάση όλα αυτά, στόχος της εργασίας είναι να προτείνει έναν σχεδιασμό της συγκεκριμένης περιοχής ο οποίος θα αποκαθιστά, θα διασφαλίζει και θα εντείνει τον δημόσιο χαρακτήρα της, καθώς επίσης και τη μεγαλύτερη, ευκολότερη πρόσβαση και χρήση του από την κοινωνία του Βόλου. Παράλληλα θα την ενοποιεί και θα την αποκαθιστά ως ένα ακόμα καθαρό και διακριτό τμήμα του μετώπου της πόλης, αντίστοιχου μεγέθους με τα υπόλοιπα. Ο κίνδυνος της υπερβολικής ομοιογένειας και πιθανής μονοτονίας που αυτή μπορεί να παράγει είναι αντιληπτός και αντιμετωπίζεται με τον σχεδιασμό διαφορετικών ποιοτήτων και αντικειμένων σε κάθε κλίμακα, οι οποίοι ενώ δεν κλονίζουν την αίσθηση του όλου, του ενιαίου και της συνέχειας, προσφέρουν τοπόσημα, ενδιαφέρον και πιθανότητα έκπληξης. Όλα αυτά γίνονται με σκοπό να δοθεί στους χρήστες της η δυνατότητα αυτού που ο Fredric Jameson ονομάζει «γνωσιολογική χαρτογράφηση» (cognitive mapping), δηλαδή το να μπορεί ο επισκέπτης/κάτοικος της περιοχής να αντιληφθεί το σύστημα στο οποίο βρίσκεται στον ευρύτερο δυνατό βαθμό, καταφέρνοντας έτσι να αποκτήσει μια πιο οικεία, ενεργή και συλλογική σχέση με το γύρω του περιβάλλον.
Υπάρχουσα κατάσταση
Ανάλυση
1: α) διάγραμμα κίνησης οχημάτων – β) διάγραμμα ορισμού ιδιωτικού/δημόσιου χώρου
2: γ) χρήσεις γής – δ) διαδρομές κίνησης ποδηλάτου
Στρατηγικές
Τα παρακάτω διαγράμματα παρουσιάζουν τρία είδη «διαχωρισμών» που εντοπίζονται μέσω της μέχρι τώρα ανάλυσης και τους οποίους καλούμαστε να άρουμε. Αυτοί είναι:
α) ο διαχωρισμός της πόλης με τη θάλασσα που προξενεί συνολικά το πάρκο,
β) ο κεντρικός διαχωρισμός στα δύο της περιοχής μελέτης, που προκαλείται από μια πύκνωση εγκαταστάσεων, ιδιωτικών χρήσεων και περιφράξεων (π.χ. Ξενία, καφετέριες, ναυτιλιακός όμιλος) και
γ) επιμέρους κατακερματισμοί της περιοχής λόγω της ύπαρξης μικρότερων εμποδίων (φυτεύσεις και διαφορές στάθμης στο πάρκο του Αγίου Κωνσταντίνου, διάφορες κατασκευές και μια καφετέρια στο πάρκο του Αναύρου).
Απέναντι σε όλα αυτά μια πρώτη κίνηση είναι η ανίχνευση και παρουσίαση των προβολών στη θάλασσα των δρόμων που είναι κάθετοι στο πάρκο. Αυτό το δεδομένο επιλέγεται ως ένα από τα βασικά εργαλεία του σχεδιασμού, καθ’ ότι με τη «διάνοιξη» αυτών των αξόνων (με μια σειρά τρόπους) εντείνεται η σχέση με τη θάλασσα σε μεγάλο μέρος της πόλης. Πλέον ο κάτοικος του Βόλου, μέσω του ιπποδάμειου πολεοδομικού συστήματός, θα μπορεί με μεγαλύτερη ευκολία να βλέπει τη θάλασσα από κάθε σταυροδρόμι και να αντιλαμβάνεται πιο ξεκάθαρα τη σχέση της θέσης του με την υπόλοιπη πόλη και τα φυσικά στοιχεία που την περιβάλλουν.
Στην ακόλουθη εικόνα παρουσιάζονται οι βασικές σχεδιαστικές στρατηγικές που χρησιμοποιούνται.
Η πρώτη είναι η επέμβαση στο σχήμα της ακτογραμμής με μεγάλες καθαρές κινήσεις οι οποίες κάνουν την περιοχή ένα ακόμα διακριτό και συνεχές τμήμα του συνόλου του μετώπου του Βόλου.
Σε επόμενο επίπεδο αποφασίζεται η κάλυψη του συνόλου της περιοχής με ένα χαρακτηριστικό ενιαίο δάπεδο. Κάτι τέτοιο επιτυγχάνει την υφολογική και εμπειρική ενοποίηση της. Το δάπεδο αυτό διαχέεται και στους δρόμους που ξεκινούν από τα όρια του νέου πάρκου εντείνοντας τη συνέχεια του με το υπόλοιπο αστικό σύστημα. Παράλληλα οι χώροι πρασίνου ενισχύονται και ενοποιούνται σε μεγάλα καθαρά σύνολα και τα οποία τη διατρέχουν σε όλο το μήκος της.
Το επόμενο διάγραμμα αποτελεί μια διαγραμματική απεικόνιση της συνολικής σχεδιαστικής προσέγγισης της εργασίας. Στην «εκκαθάριση» των προεκτάσεων των κάθετων στο πάρκο δρόμων, που περιγράψαμε μόλις προηγουμένως, προστίθεται η ένταση των οριζόντιων διαδρομών. Δημιουργείται έτσι ένα νέο δίκτυο, το οποίο μπορεί να αποτελέσει την «επέκταση» του αστικού ιστού στο ενδιάμεσο μεταξύ κτισμένου περιβάλλοντος και θάλασσας.
Στη συνέχεια κυρίαρχο ρόλο παίζουν οι έξι πύργοι που προσθέτουμε σε χαρακτηριστικά σημεία, οι οποίοι με την επαναλαμβανόμενη εικόνα τους αλλά και τη χρήση τους (δυνατότητα περισκοπικής και από μεγάλο ύψος θέασης της περιοχής) δίνουν την ευκαιρία σύλληψης του συνόλου το πάρκου ως ένα σύστημα κοινών διακριτών δομών. Με την εξαίρεση του ξενοδοχείου Ξενία και του ναού του Αγίου Κωνσταντίνου αφαιρούνται τα υπάρχοντα κτίσματα και στη θέση τους προσθέτονται νέα τα οποία προξενούν κάποια ένταση χρήσεων και πόλους έλξης. Τα τελευταία δημιουργούνται μέσω εδαφικών πτυχώσεων, μεγιστοποιώντας την έκταση του ανοιχτού δημόσιου χώρου ο οποίος πλέον περιλαμβάνει και τις στέγες τους, ενώ βεβαίως αποκτούν μια ιδιαίτερη και στενή σχέση με το έδαφος αφήνοντας τους πύργους να αποτελούν το κυρίαρχο ψηλό στοιχείο. Το μέτωπο του πάρκου προς την πόλη ομογενοποιείται σε έναν συνεχή δρόμο μικρής κυκλοφορίας και ταχύτητας, ενώ οι απαιτήσεις για χώρους στάθμευσης καλύπτονται από τρία νέα κτίρια parking τα οποία επουλώνουν κενά στον αστικό ιστό και δημιουργούν κατά κάποιο τρόπο τρεις διαφορετικές εισόδους στην περιοχή.
Υλοποίηση
Νέα κτίρια και κατασκευές:
Α) Οι πύργοι:
1) Στο τέλος του ενιαίου μετώπου του παραλιακού πεζόδρομου του Βόλου, απέναντι από το κεντρικό κτίριο του πανεπιστημίου Θεσσαλίας και πίσω από το άγαλμα του Ηρώου. Βρίσκεται στην αρχή του διαμήκους κυματοθραύστη, ο οποίος είναι χαρακτηριστικός δημόσιος χώρος περπατήματος της πόλης. (Α1)
2) Σχεδόν στο κέντρο του πάρκου του Αγ. Κωνσταντίνου. (Α2)
3) Στη κατάληξη του νέου βραχίονα, υπερυψωμένος πάνω στο κτίριο. (Α3)
4) Στη συμβολή των δύο υπερυψωμένων διαδρόμων πάνω από το κολυμβητήριο και κάθετα στη παραλία. (Α4)
5) Στο τέλος της εγκατάστασης του «ποταμιού» και μέσα στη θάλασσα. (Α5)
6) Επίσης μέσα στη θάλασσα στην άκρη της παραλίας του Αναύρου, σε συνδυασμό με τη προτεινόμενη εγκατάσταση μπάνιου. (Α6)
Β) Νέα κτίρια:
Διαμορφώνονται ως εδαφικές πτυχώσεις πάνω στις οποίες επεκτείνεται ο ανοιχτός δημόσιος χώρος. Στεγάζουν λειτουργίες που προϋπήρχαν κοντά στα συγκεκριμένα σημεία όπου τοποθετούνται. Αυτά είναι:
1) Εστιατόριο-καφετέρια στο πάρκο του Αγ. Κωνσταντίνου ως «βάθρο» του πύργου 2. (Β1)
2) Ο βραχίονας ο οποίος παίρνει τις λειτουργίες του ναυτικού ομίλου, μιας καφετέρειας και του δημόσιου ραδιοφωνικού σταθμού. (Β2)
3) Ανοιχτό δημόσιο κολυμβητήριο με πισίνα ολυμπιακών διαστάσεων και καταδύσεων καθώς και δημόσιες τουαλέτες. (Β3)
4) Μια καφετέρια. (Β4)
5) Γραφείο της λέσχης ναυτοπροσκόπων του Βόλου. (Β5)
6) Νέο κτίριο στο οποίο στεγάζεται η λειτουργία του εστιατορίου «Αύρα», χαρακτηριστικό τοπόσημο της πόλης. (Β6)
Γ) Άλλες κατασκευές:
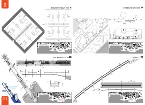
1) Πίστα skateboard. (C1)
2) Γήπεδο μπάσκετ. (C2)
3) Δύο αμφιθέατρα. (C3)
4) Μεταφορά υπάρχουσας κατασκευής-προσομοίωσης τμήματος του νεολιθικού οικισμού. (C4)
5) Κάναβος από ψηλά φώτα τα οποία κινούνται από τον αέρα δημιουργώντας μια συνθήκη ήπιου μεταβαλλόμενου νυχτερινού φωτισμού. (C5)
6) Τεχνητά βράχια-όριο προς τη θάλασσα τα οποία λειτουργούν ως καθιστικό ελαχιστοποιώντας την απόσταση του ατόμου από τη θάλασσα και ενοποιώντας τη με το πάρκο. (C6)
7) Γέφυρα. (C7)
8) Μια σειρά από πέργκολες που προσφέρουν σκίαση και ενοποιούν με τη μορφή τους το πάρκο και τον αύλιο χώρο του αρχαιολογικού μουσείου. (C8)
9) Το «ποτάμι», μια τάφρος σκεπασμένη από βατή μεταλλική σήτα η οποία διατρέχει τον αύλιο χώρο του αρχαιολογικού μουσείου και το πάρκο καταλήγοντας στη θάλασσα. Σε αυτή ρέει διαρκώς νερό που αντλείται με μηχανικά μέσα από τη θάλασσα. (C9)
10) Μια εγκατάσταση μπάνιου σε έναν κυματοθραύστη της παραλίας του Αναύρου από επιπλέουσες πλατφόρμες και υπερυψωμένες επιφάνειες για βουτιές. (C10)
Δ) Διατηρούμενες υπάρχουσες εγκαταστάσεις:
1) Κεντρικό κτίριο του πανεπιστημίου Θεσσαλίας. (D1)
2) Ναός Αγίου Κωνσταντίνου σημαντικό τοπόσημο της πόλης έργο του διάσημου αρχιτέκτονα Αριστοτέλη Ζάχου (1936). (D2)
3) Ξενοδοχείο Ξενία, επίσης βασικό τοπόσημο της πόλης, χαρακτηριστικό παράδειγμα από τη σειρά διάσημων ομώνυμων ξενοδοχείων που χτίστηκαν στην Ελλάδα μεταξύ του 1950 και 1974. Προτείνεται ο δραστικός περιορισμός του περιβάλλοντα χώρου του, η κατάργηση της πισίνας του (στη θέση της το νέο δημόσιο ανοιχτό κολυμβητήριο) και η κατάργηση του υπαίθριου χώρου στάθμευσης του (οι ανάγκες στάθμευσης καλύπτονται από το νέο κτίριο parking το οποίο προτείνεται στο απέναντι οικοδομικό τετράγωνο). (D3)
4) Παλιά πτέρυγα του κεντρικού νοσοκομείου του Βόλου. (D4)
5) Αρχαιολογικό μουσείο Βόλου. Προτείνεται η αναμόρφωση του αύλιου χώρου του και η ένταξη σε αυτόν των τεσσάρων κτισμάτων που βρίσκονται μπροστά του. Για τα τελευταία προτείνεται η αλλαγή χρήσης τους και η μετατροπή τους σε κέντρα περιοδικών εκθέσεων σύγχρονης τέχνης. (D5)
συνολική κάτοψη παρέμβασης:
διαμόρφωση φύτευσης:
Οι πύργοι
Οι πύργοι διαμορφώνονται ως μεγάλες ελαφριές μεταλλικές κατασκευές. Το τελικό τους ύψος είναι 29,5 μέτρα (διαφοροποιείται ανάλογα με την τοποθεσία) και διαθέτουν 6 επίπεδα. Λειτουργούν ως μηχανές παραγωγής ενέργειας αλλά και θέασης και κάθετου δημόσιου χώρου. Χωρίζονται σε δύο διαφορετικούς τύπους: τον τύπο 1 ο οποίος διαθέτει τέσσερις ανεμογεννήτριες απλού έλικα, και τον τύπο 2 που διαθέτει οχτώ ανεμογεννήτριες κάθετου έλικα. Επίσης στην κορυφή κάθε πύργου είναι εγκατεστημένες τέσσερις ανεμογεννήτριες τύπου τουρμπίνας. Στο κέντρο κάθε πύργου έχει τοποθετηθεί ένα περισκόπιο που αυξάνει τις δυνατότητες παρατήρησης της περιοχής και της υπόλοιπης πόλης. Η κίνηση γίνεται μέσω σκάλας ή ανελκυστήρα ενώ οι επιφάνειες αποτελούνται από βατές μεταλλικές σήτες που προσφέρουν διαφάνεια, εκτός της ψηλότερης η οποία διαφυλάσσει τα χαμηλότερα επίπεδα από τη βροχή.
Αστικός εξοπλισμός
Οι βασικοί στόχοι της εργασίας (υλική, εμπειρική και συνειδησιακή ενοποίηση, σύλληψη, κατανόηση και χρήση της περιοχής) επιχειρείται να ικανοποιηθεί και διαμέσου του σχεδιασμού στην κλίμακα του αστικού εξοπλισμού. Για τον λόγο αυτό επιλέγονται καθαρά στοιχεία που επαναλαμβάνονται σε όλο το μήκος της περιοχής και τα οποία βρίσκονται σε υφολογική συνάφεια μεταξύ τους. Κυρίαρχο στοιχείο αποτελούν οι μπετονένιες κατασκευές (π.χ. καθιστικά, διαμήκη καθιστικά, «φωλιές», «ανεστραμμένες φωλιές», δάπεδα, τεχνητά βράχια) που διαχέονται στο τοπίο καλύπτοντας πολλές ανάγκες εξοπλισμού. Όλες αυτές σχεδιάζονται συνολικά με βάση τις σταθερές διαστάσεις 0,8×0,4x3m.
Ο δρόμος μεταξύ του πάρκου και της υπόλοιπης πόλης ήταν παλιότερα τμήμα της σιδηροδρομικής σύνδεσης του Βόλου με το βουνό Πήλιο. Οι ράγες του τραίνου υπάρχουν ακόμη. Προτείνεται η διατήρηση και η ανάδειξή τους.
Στο πάρκο του Αναύρου έχει τοποθετηθεί μια γλυπτική εγκατάσταση του γνωστού καλλιτέχνη Φιλόλαου. Αποτελείται από μια επιφάνεια την οποία διατρέχει μια μεταλλική λωρίδα. Η τελευταία σηκώνεται δημιουργώντας μορφές. Προτείνεται η επανατοποθέτησή του και η επέκταση της λωρίδας με σκοπό αυτή να διατρέχει πλέον όλο τον χώρο του πάρκου του Αναύρου και να καταλήγει στο κτίριο του μουσείο. Στον άξονά της τοποθετούνται οχτώ πέργκολες.
Το 1988 ο Βόλος φιλοξένησε ένα συμπόσιο γλυπτικής στο οποίο συμμετείχαν σημαντικοί Έλληνες και ξένοι καλλιτέχνες. Κατά τη διάρκειά του φιλοτεχνήθηκαν γλυπτά τα οποία μετά δωρίστηκαν στην πόλη του Βόλου. Εννιά από αυτά είναι σήμερα τοποθετημένα στο πάρκο του Αναύρου. Προτείνεται η επανατοποθέτησή τους στον νέο χώρο σε μια επιφάνεια πρασίνου.
Παράλληλα στην αυλή του αρχαιολογικού μουσείου υπάρχει πλήθος αρχαίων γλυπτών και άλλων αρχαιοτήτων, τα οποία προτείνεται να επανατοποθετηθούν στους χώρους πρασίνου που σχεδιάζονται στο συγκεκριμένο μέρος.
Τέλος νέα γλυπτά μπορούν να τοποθετηθούν πάνω σε βάθρα μέσα στο «ποτάμι» (C9) στα ανοίγματα που προσφέρει η μεταλλική σήτα που το καλύπτει. (Π.χ.: Ο Βόλος βρίσκεται στη θέση της αρχαίας πόλης Ιωλκού, από την οποία ο μυθικός ήρωας Θησέας ξεκίνησε το ταξίδι της αργοναυτικής εκστρατείας. Ομοιώματα του καραβιού του «Αργώ» βρίσκονται σήμερα στη πόλη. Ένα τέτοιο γλυπτό θα μπορούσε να τοποθετηθεί μέσα στο τρεχούμενο νερό του «ποταμιού»). Έτσι αυτή η κατασκευή που ενώνει τον χώρο του μουσείου με το πάρκο και τη θάλασσα παίρνει τον χαρακτήρα ενός «ποταμιού πολιτισμού».
Τα κτίρια
1) Βραχίονας (Β2)
2) Κολυμβητήριο (Β3)
3) Εστιατόριο-καφετέρια στο πάρκο του Αγ. Κωνσταντίνου (Β1)
4) Εστιατόριο-καφετέρια στο πάρκο του Αναύρου (Β4)
5) Εστιατόριο-καφετέρια «Αύρα» στην παραλία του Αναύρου (Β6)
6) Γραφεία ναυτοπροσκόπων (Β5)
7) Εγκαταστάσεις μπάνιου στην παραλία του Αναύρου (C10)






























