Σύστημα μονάδων υποστήριξης μεταναστών – προσφύγων: η περίπτωση του Μεταξουργείου

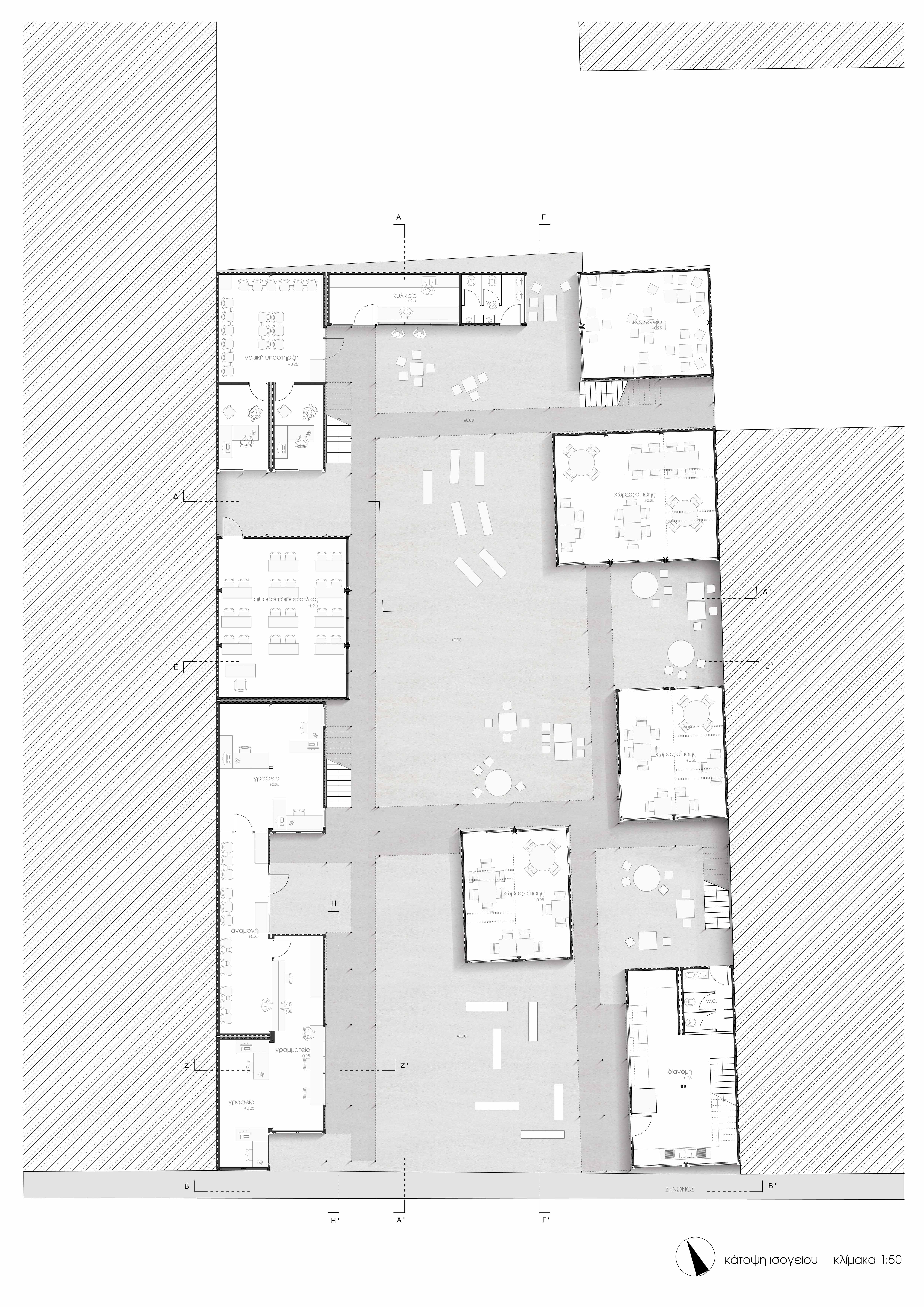
Παρουσιάζουμε εδώ την ενδιαφέρουσα διπλωματική εργασία των φοιτητών της Αρχιτεκτονικής ΕΜΠ, Μιχάλη Βαφειάδη και Μιχαήλ Ταβλαδωράκη, με επιβλέποντα καθηγητή τον Σταύρο Σταυρίδη. Αντικείμενο της εργασίας είναι ο σχεδιασμός ενός κέντρου στέγασης και υποστήριξης των μεταναστών της περιοχής του Μεταξουργείου. Σαν δομική μονάδα επιλέγεται το container. Αφαιρώντας κάποια από τα εσωτερικά χωρίσματα, το container αναδεικνύεται σε βιώσιμο χώρο για τη στέγαση λειτουργειών όπως η κατοικία, η σίτιση, η διοίκηση κ.ά. Αναπτύσσεται μία σύνθετη τυπολογία σύνθεσης της δομικής μονάδας σε μεγαλύτερες μονάδες με την ένωση δύο, τριών, τεσσάρων ή και περισσότερων container κατ έκταση και καθ’ ύψος. Σε συνδυασμό με ένα σύστημα από σκαλωσιές που παρέχουν τις απαραίτητες κινήσεις για την πρόσβαση σε όλους τους ορόφους, συγκροτούνται πτέρυγες. Το σύστημα που περιγράφεται παραπάνω εκτός από ευκολία, ταχύτητα και χαμηλού κόστους κατασκευή, είναι αρκετά ελαστικό ώστε να μπορεί να εφαρμοστεί σε κάθε διαθέσιμο οικόπεδο ανεξάρτητα από το σχήμα του. Αφού αποφασίζεται το συγκεκριμένο οικόπεδο που θα φιλοξενήσει το κέντρο στο Μεταξουργείο, λαμβάνει χώρα ο συγκεκριμένος σχεδιασμός. Παρακάτω παρουσιάζεται το προγραμματικό πλαίσιο του σχεδιασμού και οι πινακίδες παρουσίασης της διπλωματικής (είναι σε υψηλή ανάλυση και ανοίγουν κάνοντας κλικ πάνω τους). 

Η Αθήνα μετά την δεκαετία του ’90 μετατρέπεται σταδιακά σε μια καπιταλιστική μητρόπολη περνώντας μια σειρά μετασχηματισμών τόσο χωρικών όσο και κοινωνικών.  Πέραν των επιπτώσεων των νεοφιλελεύθερων πολιτικών επιλογών και της υιοθέτησης ενός συγκεκριμένου μοντέλου ανάπτυξης, κομβικό ρόλο στον μετασχηματισμό της πόλης έρχεται να παίξει και η μετατροπή της χώρας από πομπό σε δέκτη μεταναστών από το 1990 μέχρι σήμερα. Ο “εκσυγχρονισμός” της χώρας αλλά και της πόλης οδήγησε σε μια όξυνση των κοινωνικών αντιθέσεων για να φτάσουμε σήμερα στην Αθήνα την περίοδο της κρίσης όπου τα κοινωνικά προβλήματα λαμβάνουν εκρηκτικές διαστάσεις. Όλο και περισσότερα κομμάτια πληθυσμού οδηγούνται σε καθεστώς εξαθλίωσης (φτώχια, ανεργία, αύξηση αστέγων κλπ) ενώ αυξάνονται και τα φαινόμενα περιθωριοποίησης κοινωνικών ομάδων (μετανάστες, τοξικοεξαρτημένοι κλπ).  Αν και τα παραπάνω φαινόμενα έχουν βαθιές κοινωνικές ρίζες και αιτίες και απαιτούν ριζοσπαστικές πολιτικές και κοινωνικές αλλαγές για να επιλυθούν, σήμερα καταργούνται ακόμα και οι πιο στοιχειώδεις μηχανισμοί στήριξης και ένταξης των πιο περιθωριοποιημένων κοινωνικών ομάδων. Οι μετανάστες και οι πρόσφυγες αποτελούν την πλέον ευάλωτη ομάδα καθώς όχι μόνο υφίστανται την τάση περιθωριοποίησης που υφίσταται και η κοινωνία συνολικότερα, αλλά βρίσκονται ήδη στην πιο δεινή θέση. Σε μια συγκυρία μάλιστα που εκτός του καθημερινού υλικού αδιεξόδου που βιώνουν, δέχονται και την επίθεση των ρατσιστικών ιδεολογιών και πρακτικών του κράτους ή άλλων ομάδων. Χαρακτηριστική είναι και η κυνική προσπάθεια εκμετάλλευσης των περιπτώσεων (της στοχευμένης) αστικής υποβάθμισης, με σκοπό την άντληση κέρδους και υπεραξίας από τη μεριά του κεφαλαίου, μέσω της ανάπλασης και του εξευγενισμού περιοχών του κέντρου. Για μας η υποστήριξη των μεταναστών για την κοινωνική τους ένταξη (και αντίστοιχα των άλλων κοινωνικών ομάδων που οδηγούνται στον αποκλεισμό) δεν πηγάζει τόσο από ανθρωπιστικά κριτήρια αλλά από το πως μπορούν πραγματικά να επιλυθούν τα προβλήματα υποβάθμισης της πόλης και της καθημερινότητας των κατοίκων της.

Η μετανάστευση στην Ελλάδα

Η ανάπτυξη των πόλεων διαχρονικά  βασιζόταν σε μεγάλο βαθμό σε κύματα μετανάστευσης, εσωτερικής ή εξωτερικής, και με αυτήν την έννοια οι μετανάστες αποτελούν συστατικό στοιχείο της πόλης και όχι ένα μεμονωμένο συγκυριακό φαινόμενο. Εστιάζοντας στην ελληνική περίπτωση, η μετανάστευση επικαθορίζεται από δύο βασικούς παράγοντες. Ο πρώτος παράγοντας είναι η δημιουργία των σύγχρονων μεταναστευτικών ρευμάτων μετά την πτώση της ΕΣΣΔ, της επέλασης του νεοφιλελευθερισμού παγκοσμίως και την όξυνση των κοινωνικών αντιθέσεων διεθνώς, αλλά και της διεξαγωγής ιμπεριαλιστικών επεμβάσεων (Ιρακ, Αφγανιστάν κλπ) ή εμφύλιων συγκρούσεων σε χώρες του τρίτου κόσμου. Η γεωγραφική θέση της Ελλάδας, με αχανή ακτογραμμή και ορεινή συνοριακή ζώνη, συμβάλει στο να αποτελεί κόμβο μεταναστευτικών ροών προς τις άλλες χώρες της Ευρώπης. Ο δεύτερος παράγοντας αφορά τις ανάγκες και τα χαρακτηριστικά της μέχρι πρότινος «αναπτυσσόμενης» ελληνικής οικονομίας. Πιο συγκεκριμένα η ανάπτυξη του τριτογενή τομέα (τουρισμός, προσωπικές υπηρεσίες) και δραστηριοτήτων εποχιακού χαρακτήρα (γεωργία, αλιεία, τουρισμός, οικοδομή) σε συνδυασμό με την κυριαρχία της άτυπης εργασίας, συνοδεύτηκε από την ανάγκη για φτηνό, ευέλικτο, μη συνδικαλιζόμενο εργατικό δυναμικό. Η παραπάνω συνοπτική ανάλυση μας βοηθά να κατανοήσουμε την φύση της μετανάστευσης, σε αντιπαράθεση με αντιλήψεις περί “ξένης εισβολής”.

Η πλειοψηφία των μεταναστών (γύρω στις 700.000) εισήλθαν ή/και παρέμειναν στη χώρα χωρίς τα απαιτούμενα έγγραφα και απέκτησαν νόμιμο καθεστώς παραμονής μετά από εφαρμογή προγραμμάτων νομιμοποίησης με τελευταίο αυτήν του 2005. Μια σημαντική μερίδα των μεταναστών (επίσημα εκτιμάται γύρω στο 200.000 αλλά μπορεί να είναι πολύ παραπάνω στην πραγματικότητα) βρίσκεται σε καθεστώς παρανομίας, ζώντας και όντας εργαζόμενοι χωρίς να είναι καταγεγραμμένοι από τις αρχές. Απασχολούνται στην άτυπη οικονομία και δεν έχουν κανένα ή ελάχιστα δικαιώματα. Ακόμα, μια άλλη μερίδα είναι αυτή των προσφύγων και των αιτούντων ασύλου, οι οποίοι έχουν προσωρινή παραμονή μέχρι την απόφαση των κρατικών αρχών είτε για το αίτημά τους είτε για πιο μόνιμη εγκατάσταση. Αν και το νομικό καθεστώς θα αναλυθεί στην συνέχεια, πρέπει να σημειώσουμε ότι η κυριαρχία του παράνομου ή προσωρινά νόμιμου καθεστώτος των μεταναστών συνδέεται άρρηκτα με την απασχόληση του στην άτυπη εργασία και οικονομία. Ακόμα και τα προγράμματα νομιμοποίησης λειτούργησαν περιστασιακά και  αφορούσαν ορισμένες μόνο μερίδες μεταναστών.

Στην Ελλάδα συναντώνται μετανάστες από μια πληθώρα χωρών. Ενδεικτικά αναφέρουμε ότι η απογραφή του 2001 κατέγραψε αλλοδαπούς κατοίκους προερχόμενους συνολικά από 216 χώρες του κόσμου, με την συντριπτική αριθμητική υπεροχή των Αλβανών (55,6% του συνολικού αριθμού μεταναστών) ενώ ακολουθούν οι Βούλγαροι με μόλις 4,7 % και οι Γεωργιανοί και Ρουμάνοι με 2.9 % έκαστος. Βέβαια τα στοιχεία αυτά δεν περιγράφουν ακριβώς την σημερινή κατάσταση, ενώ υπάρχει έλλειψη νέων πρωτογενών δεδομένων. Εμπειρικά, θα λέγαμε πως σταδιακά τα μεταναστευτικά ρεύματα από τις χώρες του “πρώην Ανατολικού Μπλόκ” αντικαταστάθηκαν από αυτά της ανατολικής Ασίας (Μπαγκλαντές, Αφγανιστάν, Πακιστάν κλπ) και της Αφρικής (Σομαλία, Νιγηρία κλπ).  Αντίστοιχα, οι πρώτοι είχαν τις ευκαιρίες, και κατάφεραν σε κάποιο βαθμό να ενταχθούν κοινωνικά, σε αντίθεση με τους πιο πρόσφατα εισαχθέντες οι οποίοι βιώνουν τον αποκλεισμό πολύ πιο έντονα.  Εξάλλου η μεταναστευτική πολιτική πλέον αποκτά ξεκάθαρα κατασταλτικό χαρακτήρα με την δημιουργία του τείχους στον Έβρο, την μη ανανέωση νομιμοποιητικών εγγράφων, τις απελάσεις και με αποκορύφωμα την ανοχή από μεριά της αστυνομίας στα φασιστικά πογκρόμ.

Η εγκατάσταση των μεταναστών.

Οι μετανάστες ήρθαν να εγκατασταθούν κατά κύριο λόγο  στα αστικά κέντρα όπου υπάρχει μια πληθώρα εργασιών αλλά και αποτελούν κόμβο ενός δικτύου μετακίνησης εσωτερικής αλλά και εξωτερικής (Πάτρα, Ηγουμενίτσα),  και δευτερευόντως στην επαρχία όπου και εκεί υπάρχει ζήτηση για εργατικό δυναμικό στους τομείς της αλιείας, της γεωργίας, της οικοδομής και του τουρισμού. Πέραν της προσφοράς εργασίας και κατοικίας, σημαντικό ρόλο στην συγκέντρωση των μεταναστών έχει η ύπαρξη άτυπων δικτύων υποστήριξης που δημιουργούνται μέσω των οικογενειακών ή φιλικών δεσμών ή ακόμα και μέσω της ύπαρξης εθνοτικών κοινοτήτων.  Εξάλλου τα δίκτυα αυτά βοηθούν στην εύρεση κατοικίας ή εργασίας και στην αίσθηση μιας στοιχειώδους ασφάλειας αλλά και στην γενικότερη ένταξη των μεταναστών σε ένα ξένο περιβάλλον. Οι περισσότεροι που δεν έχουν οικογένεια στην Ελλάδα και είναι μόνοι τους, συγκατοικούν με άλλα άτομα για λόγους οικονομίας, διαμένοντας σε σπίτια που τους αντιστοιχούν λίγα τετραγωνικά, λόγω κόστους.

Η υποβάθμιση των περιοχών του κέντρου της Αθήνας ύστερα από την εντατική οικοδόμησή της τις δεκαετίες του ’60 και του ’70 και τον συνεπακόλουθο υδροκεφαλισμό της πόλης, σε συνδυασμό με την μετακίνηση ορισμένων μεσαίων στρωμάτων προς την περιφέρεια, ελευθέρωσε ένα υποβαθμισμένο οικιστικό απόθεμα (υπόγεια, αποθήκες, ισόγεια, μικρά ανήλιαγα διαμερίσματα), όπου ήρθαν να κατοικίσουν οι μετανάστες. Οι κατοικίες στις οποίες εγκαθίστανται οι μετανάστες παρουσιάζουν αρκετά κοινά χαρακτηριστικά, αφού η πλειονότητα κατοικεί σε πολυκατοικίες και διαμερίσματα των πρώτων ορόφων, με έναν σημαντικό αριθμό μεταναστών να διαμένουν σε υπόγεια. Οι λόγοι εγκατάστασης των μεταναστών σε αυτού του είδους κατοικίες, έχει να κάνει κυρίως με τα χαμηλά ενοίκια, σε σχέση με άλλα μέρη. Τα ιδιωτικά συμφέροντα των ιδιοκτητών ή των επενδυτών γης έρχονται να εκμεταλλευτούν αυτήν την κατάσταση. Είτε μέσω του άμεσου πλουτισμού μέσω της εκμετάλλευσης της ανάγκης τους, τον εκβιασμό και τα υψηλά ενοίκια για χαμηλού επιπέδου ποιότητα στέγης, είτε με την σε βάθος χρόνου υποβάθμιση της περιοχής, και την οικονομική εκμετάλλευσή της μέσω της κτηματομεσιτικής αγοραπωλησίας ή της μελλοντικής κατασκευαστικής «ανάπλασής» της.

Παράλληλα διατηρήθηκε και ο κατακόρυφος κοινωνικός διαχωρισμός της ελληνικής πολυκατοικίας και διαμορφώθηκε ένα καθεστώς ιδιότυπης κοινωνικής και πολιτισμικής ανάμιξης τουλάχιστον μέχρι πρόσφατα. Ωστόσο η μη ύπαρξη “γκέτο” στα πρότυπα των ευρωπαϊκών μητροπόλεων δεν αντιστοιχεί και σε μια άρση του κοινωνικού διαχωρισμού που υφίστανται οι μετανάστες. Συγκεκριμένα για την περίπτωση της Αθήνας, και ειδικότερα για ορισμένους άξονες που διατρέχουν το κέντρο της, βλέπουμε αυξημένη γεωγραφική συγκέντρωση μεταναστών. Αν και τα προηγούμενα χρόνια αναπτύχθηκε σε ένα βαθμό η κοινωνική (και αντίστοιχα γεωγραφική) κινητικότητα στην τάξη των μεταναστών, η τάση αυτή σήμερα αντιστρέφεται. Η κοινωνική πόλωση συνοδεύεται σταδιακά από μία πιο σκληρή γεωγραφική πόλωση – συγκέντρωση μεταναστών.

Έτσι οι στεγαστικές συνθήκες των πιο περιθωριοποιημένων μεταναστών είναι συχνά απαράδεκτες, με ανθρώπους να στοιβάζονται σε κακοσυντηρημένα διαμερίσματα και μεσοπολεμικά χαμόσπιτα, άλλους να βρίσκουν στέγη σε εγκαταλελειμμένα κτίρια, εξαιρετικά ακατάλληλων για μόνιμη κι ανθρώπινη διαμονή, και άλλους να μένουν άστεγοι.  Από αυτές τις ομάδες μόνο οι πρόσφυγες και οι αιτούντες ασύλου έχουν δικαίωμα προσωρινής στέγασης, χωρίς ωστόσο οι υπάρχουσες υποδομές να μπορούν να καλύψουν παρά κατ’ ελάχιστο τη ζήτηση. Γίνεται αντιληπτή λοιπόν η αντικειμενικά δυσμενής θέση των μεταναστών και κατά συνέπεια οι δυσκολίες ένταξης που προκύπτουν όπως θα αναλύσουμε παρακάτω.

Νομικό καθεστώς

Ένα από τα κυριότερα προβλήματα που αντιμετωπίζουν οι μετανάστες, τόσο όσον αφορά την είσοδο όσο και την παραμονή τους στην χώρα είναι η αντιμετώπισή τους από το ελληνικό κράτος, σε επίπεδο αναγνώρισης δικαιωμάτων, παροχής κοινωνικών υπηρεσιών και συνολικότερης κι ολοκληρωμένης πολιτικής εισόδου κι ένταξης. Χαρακτηριστική είναι η έλλειψη νομικού καθεστώτος που να στηρίζει μια – επίσης ανύπαρκτη στην Ελλάδα- μεταναστευτική πολιτική. Πιο συγκεκριμένα, από το 1990 μέχρι και σήμερα, που η μετανάστευση στην Ελλάδα πήρε μαζικές διαστάσεις, δεν υπήρξε κανένα μέτρο μεταβολής του ανεπίσημου καθεστώτος εισόδου ή διαμονής της συντριπτικής πλειοψηφίας των μεταναστών.

Τα προβλήματα που απορρέουν από το νομικό πλαίσιο δεν αφορούν μόνο την είσοδο αλλά και την παραμονή των μεταναστών. Οι διαδικασίες νομιμοποίησης και ανανέωσης του καθεστώτος διαμονής, από το πρώτο Πρόγραμμα Νομιμοποίησης μέχρι σήμερα, χαρακτηρίζονται από μια σειρά δυσχερειών διοικητικής και πολιτικής υφής, με αποτέλεσμα να δημιουργούν ένα καθεστώς συνεχούς αβεβαιότητας και ανασφάλειας. Υπό αυτές τις συνθήκες, οι μετανάστες εξαναγκάζονται να βιώνουν την εγκατάστασή τους στην Ελλάδα ως προσωρινή και επισφαλή.

Σύμφωνα με τους περισσότερους ερευνητές, η ένταξη των μεταναστών, κυρίως από την πλευρά των κυβερνητικών πολιτικών, στην ελληνική κοινωνία υπολείπεται των υπολοίπων κρατών μελών της ΕΕ και τα κρίσιμα ζητήματα φαίνεται να είναι το καθεστώς νομιμότητας των μεταναστών και η αποσπασματική χάραξη των πολιτικών με προβλήματα στην εφαρμογή τους. Το νομικό καθεστώς των μεταναστών παρουσιάζεται αβέβαιο λόγω των προϋποθέσεων για ανανέωση των αδειών παραμονής και εργασίας και της σύνδεσης της άδειας παραμονής με την εργασία ακόμα και στις περιπτώσεις τις οποίες αφορούν μετανάστες που διαμένουν πολλά χρόνια στη χώρα και παιδιά των μεταναστών που έχουν μεγαλώσει στην Ελλάδα.

Πιο συστηματική προσπάθεια για την ρύθμιση της μετανάστευσης αποτέλεσε ο νόμος 2910 του 2001 ο οποίος όμως δεν βελτίωσε ιδιαίτερα την θέση των μεταναστών.  Εκτός του γραφειοκρατικού και φοροεισπρακτικού χαρακτήρα του προγράμματος,  τα όποια δικαιώματα παρείχε ήταν προσωρινής διάρκειας. Χαρακτηριστικός είναι και ο πρόσφατα ψηφισμένος «Νόμος περί Ιθαγένειας», που  ουσιαστικά θεσπίζει την πολιτισμική αφομοίωση ως απαραίτητη προϋπόθεση για την απόκτηση της ελληνικής ιθαγένειας και του δικαιώματος στην πολιτική συμμετοχή στους λίγους που την δικαιούνται. Ιδιαίτερα σήμερα, η πολιτική του κράτους εστιάζει αποκλειστικά στην καταπολέμηση της ανεπίσημης μετανάστευσης με αστυνομικά και κατασταλτικά μέτρα.

Ακόμα πρέπει να παρατηρήσουμε ότι κανένας νόμος δεν επιφέρει από μόνος του αλλαγές αλλά και ότι καμιά ελληνική πολιτική για τη μετανάστευση δεν έχει πραγματοποιηθεί με την συμμετοχή των ίδιων των μεταναστών. Από τον παρόντα νόμο ζητείται από την μια πλευρά, η ενεργή κοινωνική πολιτική των ίδιων των μεταναστών αλλά από την άλλη οι ίδιοι οι μετανάστες δεν συμμετέχουν με κανέναν τρόπο στην χάραξη της πολιτικής.

Πολλές φορές τονίζεται ότι η ένταξη είναι μια διπλής κατεύθυνσης διαδικασία που αφορά τους ίδιους τους μετανάστες όσο και την κοινωνία και αυτό συμβαίνει για να υπογραμμιστεί ότι στην προσαρμογή συμμετέχει και η κοινωνία εγκατάστασης. Αυτονόητο για αυτήν την έρευνα είναι ότι άνθρωποι και κοινωνία είναι αλληλένδετα. Η διαδικασία της μεταβολής της κοινωνίας και των δρώντων υποκειμένων είναι αμφίδρομη και δυναμική. Η κοινωνία δεν αλλάζει από μόνη της αλλά οι άνθρωποι την αλλάζουν με τη δράση τους, τις επιλογές τους, τις συμπεριφορές τους, τις συγκρούσεις τους, στην καθημερινότητά τους. Κατά συνέπεια, οι μετανάστες ζώντας στην ελληνική κοινωνία την έχουν ήδη αλλάξει, ενώ μια βασική και κρίσιμη διάσταση είναι οι τρόποι που το αντιλαμβάνονται οι κρατικοί φορείς που διαμεσολαβούν στη ρύθμιση των κοινωνικών σχέσεων. Άρα είναι απαραίτητο να συνδυαστούν οι οπτικές των μεταναστών με τους τρόπους που αντιλαμβάνονται την ένταξη των μεταναστών εκπρόσωποι θεσμοθετημένων φορέων, οι οποίοι χαράζουν πολιτικές με στόχο την ένταξη.

Μια παρένθεση για τους πρόσφυγες

Πρόσφυγας είναι «κάθε πρόσωπο, το οποίο, επειδή έχει δικαιολογημένο φόβο διωγμού λόγω φυλής, θρησκείας, εθνικής προέλευσης, πολιτικών πεποιθήσεων ή συμμετοχής σε ορισμένη κοινωνική ομάδα, βρίσκεται έξω από τη χώρα της υπηκοότητάς του και δεν μπορεί, ή εξαιτίας αυτού του φόβου, δεν θέλει να προσφύγει στην προστασία της χώρας αυτής». (Σύμβαση  Γενεύης, 1951)

Οι πρόσφυγες είτε είναι αναγνωρισμένοι, είτε αιτούντες, είτε υπό επικουρική προστασία, απολαμβάνουν ίσης μεταχείρισης με τους υπηκόους της χώρας υποδοχής σε θέματα συνδρομής και πρόνοιας από το Δημόσιο σύμφωνα με την Σύμβαση της Γενεύης. Έτσι σε αντίθεση με το νομικό καθεστώς που αφορά την πλειοψηφία των μεταναστών, το κράτος επίσημα έχει υποχρέωση να παρέχει υπηρεσίες κοινωνικής υποστήριξης στους πρόσφυγες. Στην πράξη βέβαια τα επιδόματα και οι υποδομές στέγης είναι ελάχιστες. Ωστόσο η ιδιότητα του πρόσφυγα διασφαλίζει τουλάχιστον το δικαίωμα στην εργασία. Να σημειώσουμε όμως ότι το ποσοστό αποδοχής των αιτημάτων ασύλου είναι εξαιρετικά μικρό.

Κοινωνική Υποστήριξη

 Τα βασικά προβλήματα της ένταξης των μεταναστών εντοπίζονται πρωτίστως στην πολιτική ένταξης και υποστήριξής τους από το κράτος και τους θεσμούς. Ωστόσο, η σχεδόν παντελής έλλειψη υποδομών στα αστικά και τα βιομηχανικά κέντρα και τις αγροτικές περιοχές ή στις περιοχές εισόδου τους στην χώρα (νησιά, παραμεθόριες πόλεις και οικισμούς) δυσχεράνει ακόμα περισσότερο τις συνθήκες διαμονής κι επιβίωσης, ενώ σε συγκεκριμένες περιπτώσεις δημιουργεί εντάσεις ή συνθήκες εκμετάλλευσης τις ζωής και των αναγκών των μεταναστών.

Αντικειμενικά, παράλληλα με την βασική ανάγκη για διατύπωση σαφούς νομοθεσίας και πολιτικής αναγνώρισης δικαιωμάτων των μεταναστών και παροχής κοινωνικής στήριξης , η αντιμετώπιση του προβλήματος της ανεύρεσης στέγης, σίτισης κι εργασίας, ειδικά στην περιοχή του κέντρου, αναδεικνύεται ως σημαντικό στοιχείο της πολιτικής ένταξης αυτών των κοινωνικών ομάδων. Σε σχέση με την υπάρχουσα κοινωνική βοήθεια, όπως εκφράζει η επιδότηση ενοικίου ή τα επιδόματα στέγης, παρατηρούμε ότι ελάχιστοι παίρνουν επίδομα ενοικίου, (κυρίως άνεργοι και ανάπηροι) καθώς πολλοί δεν γνωρίζουν ότι έχουν το δικαίωμα για αυτή την παροχή. Οι παροχές υποστήριξης βέβαια, δεν εξαντλούνται στην εξασφάλιση στέγης. Η παροχή σίτισης ή ακόμα και νομικής βοήθειας, ιατροφαρμακευτικής περίθαλψης, ή η ψυχολογική υποστήριξη, στο μέτρο που αντιστοιχεί στο κάθε ένα, αποτελούν βασικά συμπληρωματικά το ένα στο άλλο στοιχεία για να ολοκληρώσουν μια ουσιαστική υποστήριξη αυτών των ομάδων.

Σίτιση

Αυτή γίνεται σχεδόν εξ’ ολοκλήρου από τα συσσίτια που οργανώνουν Δήμος κι εκκλησία. Στους κλασικούς ξενώνες δεν παρέχουν σίτιση σε άτομα που δεν φιλοξενούν.

Νομική Βοήθεια

Σχεδόν ανύπαρκτη, με τους δημόσιες υπηρεσίες να αντιμετωπίζουν τους μετανάστες ρατσιστικά. Οι διαδικασίες χαρακτηρίζονται από τεράστια γραφειοκρατία, αδικαιολόγητες καθυστερήσεις στις διαδικασίες κι έλλειψη ουσιαστικών δομών (μεταφραστές, διερμηνείς κ.α). Μόνο στις ΜΚΟ μπορεί να συναντήσει κάποιος υπηρεσίες που να προσφέρονται αποκλειστικά στους μετανάστες, που έχουν σκοπό κυρίως την ενημέρωση των διαφόρων ομάδων μεταναστών για τα δικαιώματά τους, για οργάνωση των διαδικαστικών υποχρεώσεων, για νομική βοήθεια κι άλλα.

Περίθαλψη

Παράλληλα, υπάρχουν κάποιες υποδομές ιατρικής περίθαλψης, πρωτοβάθμιας συνήθως. Οι νόμιμοι μετανάστες που έχουν ασφάλιση, προφανώς δικαιούνται πρόσβαση στο σύστημα υγείας, τις νόμιμες εξετάσεις και νοσηλεία στα δημόσια νοσοκομεία. Κάποιες ΜΚΟ, όπως οι Γιατροί του Κόσμου, παρέχουν ιατρο-φαρμακευτική περίθαλψη  σε όλους τους μετανάστες, χωρίς να απαιτούνται τα απαραίτητα χαρτιά.

Πρόταση – Συμπεράσματα

Σε αυτά τα πλαίσια κρίνεται αναγκαία η άμεση υλική υποστήριξη των μεταναστών και των προσφυγων, μέσω ενός συστήματος μονάδων που θα φιλοξενούν βοηθητικές λειτουργίες (σίτισης, στέγασης, περίθαλψης και νομικής υποστήριξης). Αυτές οι λειτουργίες κρίνεται σκόπιμο να μπορούν να διασπείρονται στην πόλη και στις περιοχές που υπάρχει ανάγκη, σε αντίθεση με μια κατεύθυνση δημιουργίας μαζικών υπερτοπικών κέντρων που μπορεί να δημιουργούν ένα καθεστώς εγκλεισμού και να εντείνουν τάσεις χωρικού και κοινωνικού αποκλεισμού.  Ταυτόχρονα η οργάνωση ενός τέτοιου συστήματος θα συνοδεύεται και από την συγκρότηση ενός κοινόχρηστου, ημιδημόσιου χώρου που ιδεατά θα λειτουργεί ως κέντρο της καθημερινότητας των ανθρώπων που εξυπηρετεί ανα τόπο. Πέραν της υλικής στήριξης, ένα τέτοιο κέντρο αποτελεί ένα μεταβατικό περιβάλλον που μπορεί να συμβάλει στην οικειοποίηση των ίδιων των μεταναστών με την πόλη και των δημόσιο χώρο.  Η συγκρότηση ενός τέτοιου κέντρου αποτελεί το βασικό επίδικο της συγκεκριμένης διπλωματικής.

Δεδομένης της σημερινής πολιτικής απέναντι στους μετανάστες και την απόσυρση του κράτους από την κοινωνική πρόνοια προφανώς μια τέτοια παρέμβαση μπορεί να μοιάζει ουτοπική. Δεν παύει όμως να είναι αναγκαία. Ακριβώς για αυτό τον λόγο δίνουμε έμφαση και στην τυποποίηση – προσωρινότητα  – προσαρμοστικότητα της πρότασής μας ώστε αυτή να είναι πιο ρεαλιστική και εύκολα πραγματοποιήσιμη.  Το ζήτημα βέβαια αλλαγής της κυρίαρχης πολιτικής παραμένει πάντα βασική προϋπόθεση για μια τέτοια παρέμβαση.

Άγνωστο's avatar

Συντάκτης: Αριστερή Κίνηση Εργαζόμενων Αρχιτεκτόνων - ΑΚΕΑ

Συλλογικότητα άνεργων, μισθωτών και αυτοαπασχολούμενων αρχιτεκτόνων, που δραστηριοποιείται στον ΣΑΔΑΣ-ΠΕΑ και όχι μόνο.

Σχολιάστε